VODICE, nowe budownictwo, 1. piętro, 2 sypialnie, Vodice, Dalmacja, Chorwacja 416/12337/OMS
Szczegóły inwestycji
VODICE – Na sprzedaż nowoczesne mieszkanie na 1. piętrze z 2 sypialniami i balkonem, położone 1300 m od centrum i 1600 m od plaży!
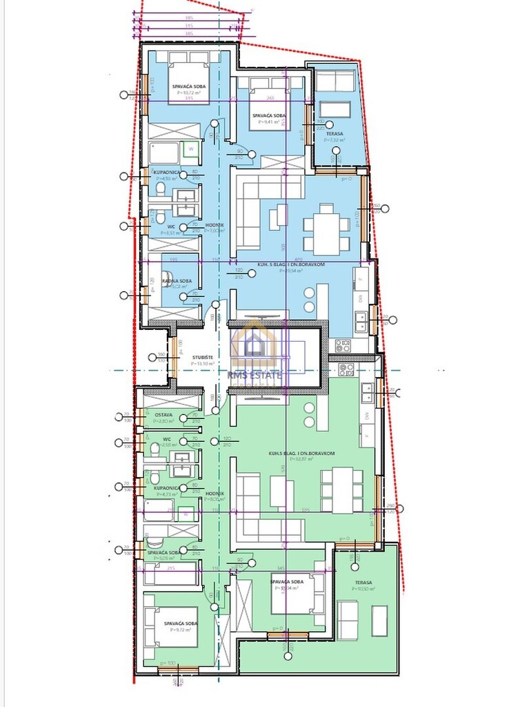
Mieszkanie S4 o łącznej powierzchni użytkowej 74,05 m² znajduje się na 1. piętrze. Mieszkanie jest zorientowane na wschód i składa się z przedpokoju, WC, łazienki, dwóch sypialni, gabinetu, kuchni z jadalnią oraz przestronnego salonu, z którego prowadzi wyjście na zadaszony taras o powierzchni 7,44 m².
Do mieszkania przynależy jedno zewnętrzne miejsce parkingowe przed budynkiem.
W trakcie budowy jest nowoczesny, niewielki budynek mieszkalny z 4 lokalami, o ciekawym designie i funkcjonalnym układzie.
Znajduje się w spokojnej okolicy, w zabudowanej części miasta otoczonej domami jednorodzinnymi.
Składa się z dwóch kondygnacji: parteru.
Budynek jest wznoszony z wysokiej jakości materiałów zgodnie z najnowszymi standardami budownictwa i będzie wyposażony w: elewację z styropianu, drzwi antywłamaniowe i ognioodporne, stolarkę PVC, aluminiowe elektryczne rolety z moskitierami, klimatyzację we wszystkich pomieszczeniach, wysokiej jakości podłogi, nowoczesne wyposażenie łazienek, elektryczne ogrzewanie podłogowe w salonie
i łazience.
Do każdego mieszkania przynależy jedno miejsce parkingowe. Planowane zakończenie prac i wprowadzenie się – lato 2026 roku.
____________________________________
Skontaktuj się z nami!
Zespół RMS Estate Croatia Świadczy profesjonalną obsługę oraz doradztwo w zakupie nieruchomości w Chorwacji.
📞 +48 570 808 101
📧 chorwacja@msestate.pl
🌍 nieruchomoscichorwacja.eu
🔗 facebook.com/RMSEstateCroatia
Zapraszamy do współpracy!
________________________________________
Kupujący ponosi prowizję agencyjną w wysokości 3% + 23% VAT.
________________________________________
Zobacz na mapie















